Rock Hill
South CarolinaWelcome to Rock Hill
Homes for Sale In Rock Hill
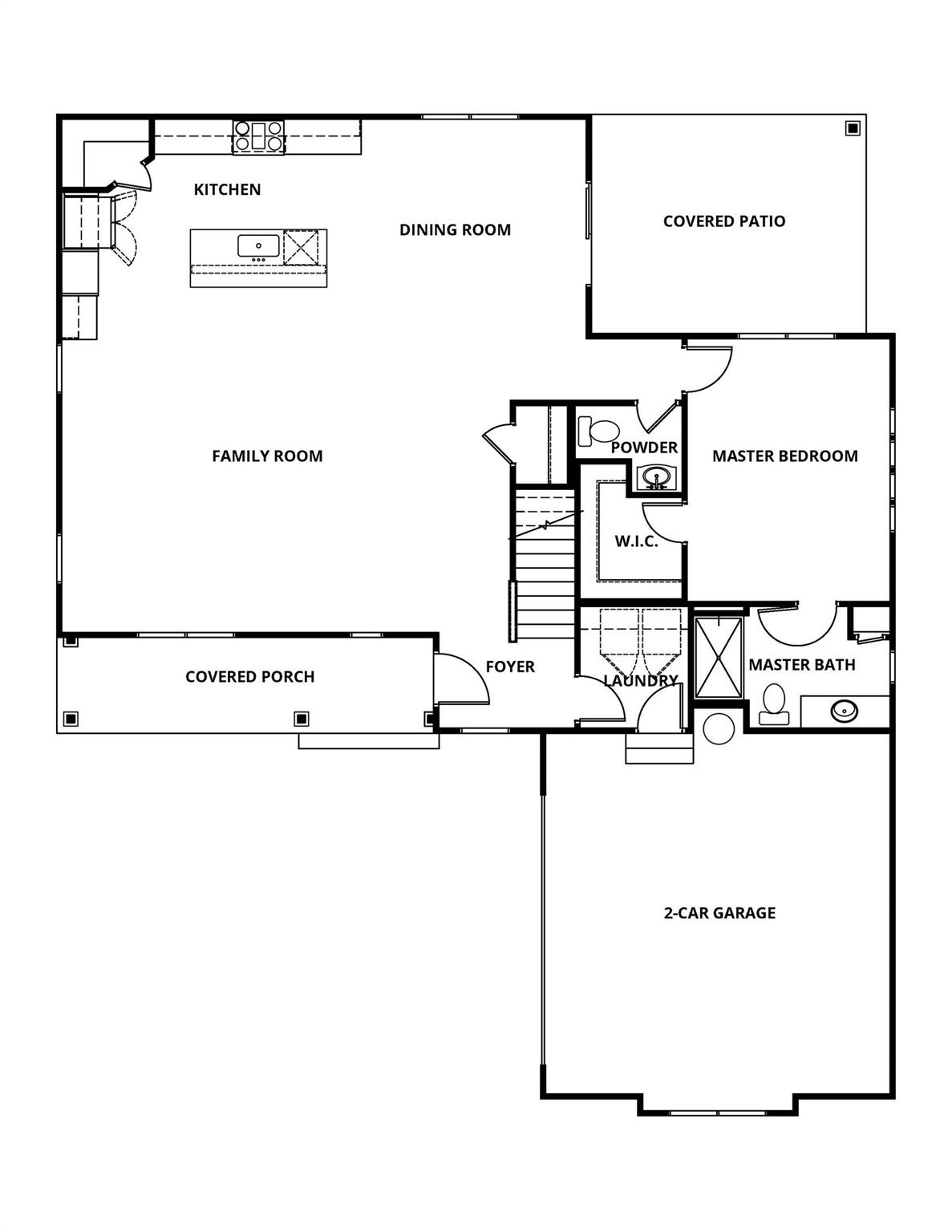
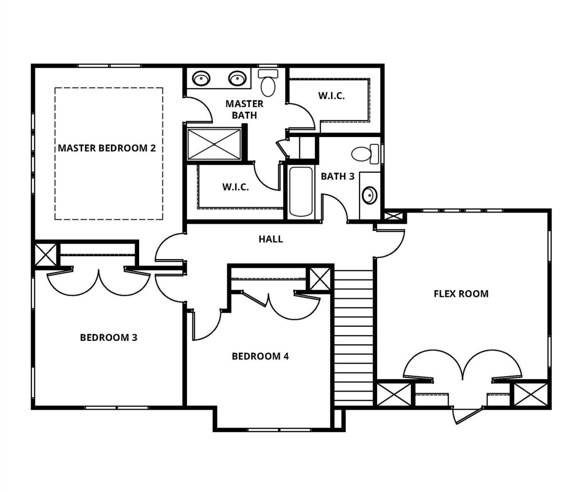
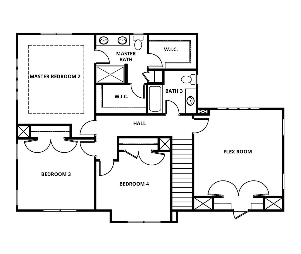
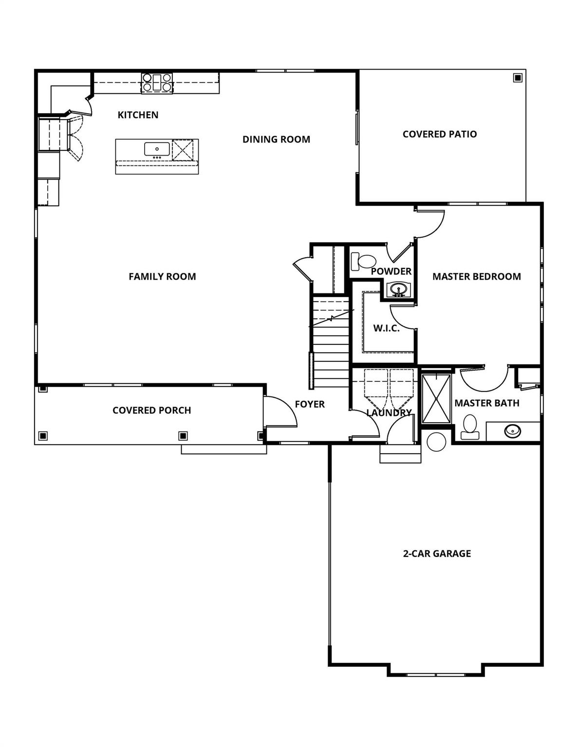
Spacious, open living is what you will find in the Williamsburg floor plan. With a wide array of rooms and spaces, this floor plan is bound to have everything you need! This four-bedroom, three-and-a-half-bath home is truly the home every entertainer dreams of. The chef-inspired kitchen is the main focal point of the first floor. This open kitchen connects to the family room and dining room, allowing you to be close to everything. Tucked in the back you will find a large bedroom with full bath, perfect for the multi-generational family. Need more space downstairs to entertain? No problem, walk through the doors off the dining area, and you can extend your gathering to the covered outdoor living area. Upstairs you will find another Primary bedroom and bath, two large bedrooms and another large room that could also be a bedroom. With so much room, the Williamsburg is one of the most flexible floor plans, with surprises around every corner. Neighborhood is near York Preparatory Academy. Please ask about our builder incentives!
| MLS#: | 4328739 |
| Price: | $581,900 |
| Square Footage: | 2400 |
| Bedrooms: | 4 |
| Bathrooms: | 3.1 |
| Acreage: | 0.32 |
| Year Built: | 2025 |
| Type: | Single Family Residence |
| Listing courtesy of: | LGI Homes NC LLC - msceau@lgihomes.com |
Contact An Agent:














































