Rock Hill
South CarolinaWelcome to Rock Hill
Homes for Sale In Rock Hill
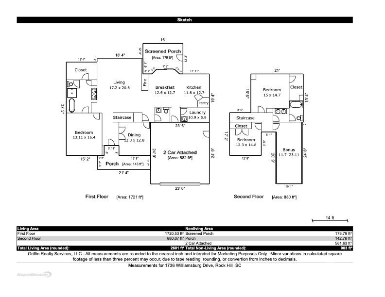
Lakeview semi-custom home by builder Andrew Alosi with lake access to a peaceful, motor-free lake ideal for kayaking and canoeing. Enjoy fish, ducks, turtles, and a private backyard next to HOA common area. Single-owner home with primary suite on main level, 3 bedrooms plus bonus room. Features include 3-inch oak flooring, coffered great room ceiling, wainscoting in office and dining room, granite countertops in kitchen and baths, stainless steel appliances, custom stone fireplace with fossil accents, and screened/covered porch with storage. Spacious primary suite with vaulted ceiling and large bath. New 40-year hail-resistant roof (June 2024). Oversized garage with epoxy floor and keypad entry. South-facing windows include UV film and double-tilt design. Crawlspace with dehumidifier and moisture barrier. Front porch with fan, storm doors with optional screens, extra outlets, and exterior rear spigot. Close Proximity to York Preparatory Academy only 1.4 miles away!
| MLS#: | 4333786 |
| Price: | $560,000 |
| Square Footage: | 2601 |
| Bedrooms: | 3 |
| Bathrooms: | 2.1 |
| Acreage: | 0.35 |
| Year Built: | 2015 |
| Type: | Single Family Residence |
| Listing courtesy of: | Coldwell Banker Realty - elizabeth.shamble@cbcarolinas.com |
Contact An Agent:







