Plaza Midwood
Charlotte, North CarolinaWelcome to Plaza Midwood
Homes for Sale In Plaza Midwood
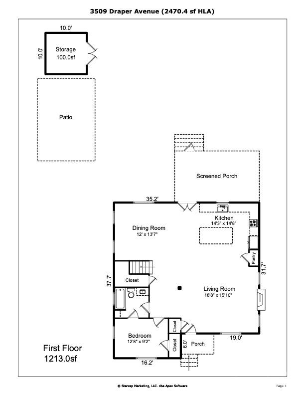
Welcome to 3509 Draper Ave, a beautifully updated home in a desirable Merry Oaks neighborhood. This residence blends character and modern design with thoughtful updates throughout. The home is complemented by elegant wallpaper accents and board-and-batten detailing which adds sophistication and charm.The living room features a cozy gas fireplace as its focal point. Out front, you’ll find delightful blueberry bushes, offering a sweet, natural touch to your landscape. A screened-in back porch offers a tranquil retreat, perfect for morning coffee or evening relaxation. This home offers more than just great style; it promises comfort and functionality, making it ideal for both quiet nights in and lively gatherings. With its prime location, you're just minutes from local dining, shopping, and entertainment options. Don't miss the opportunity to make this beautifully curated home yours! Schedule a showing today to experience its charm. Free Appraisal With Preferred Lender
| MLS#: | 4356102 |
| Price: | $870,000 |
| Square Footage: | 2470 |
| Bedrooms: | 4 |
| Bathrooms: | 3 |
| Acreage: | 0.27 |
| Year Built: | 1951 |
| Type: | Single Family Residence |
| Listing courtesy of: | 5 Points Realty - sumerblaine@gmail.com |
Contact An Agent:




























