Mount Holly
Mount Holly, North CarolinaWelcome to Mount Holly
Homes for Sale In Harrisburg
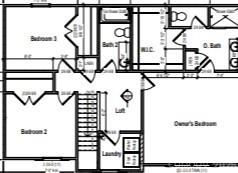
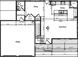
New construction in one of Mount Holly's most desired subdivisions! – a stunning two-story residence offering 1,825 heated square feet of modern, thoughtfully designed living space with 3 bedrooms and 2.5 baths. No HOA! This beautiful home combines timeless elegance with contemporary finishes, perfect for comfortable family living or entertaining. Step through the striking mahogany front door into an inviting foyer that flows seamlessly into the open-concept main level. The first floor boasts hardwood flooring throughout the living areas, including the great room, dining area, and kitchen – creating a warm, cohesive feel. The kitchen features modern black plumbing and electrical fixtures, a stylish tile backsplash, and plenty of cabinet space. A convenient powder room, mud room, and attached garage add everyday practicality. Up the beautiful hardwood stairs, the second floor offers privacy and comfort. The primary bedroom has a spacious walk-in closet, and the primary bathroom has a beautifully tiled master shower, and linen storage. The additional bedrooms share a well-appointed full bath with tile flooring, plus a laundry room with tile flooring. Outside, you will be able to enjoy the rocking chair front porch or the oversized patio in the back. Great Mount Holly location. Close to downtown, dining and grocery.
| MLS#: | 4357506 |
| Price: | $440,000 |
| Square Footage: | 1825 |
| Bedrooms: | 3 |
| Bathrooms: | 2.1 |
| Acreage: | 0.37 |
| Year Built: | 2026 |
| Type: | Single Family Residence |
| Listing courtesy of: | Southern Realty Partners LLC - homeswithsheena@hotmail.com |
Contact An Agent:































