Indian Land
Indian Land, South CarolinaWelcome to Indian Land
Homes for Sale In Indian Land
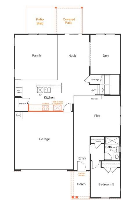
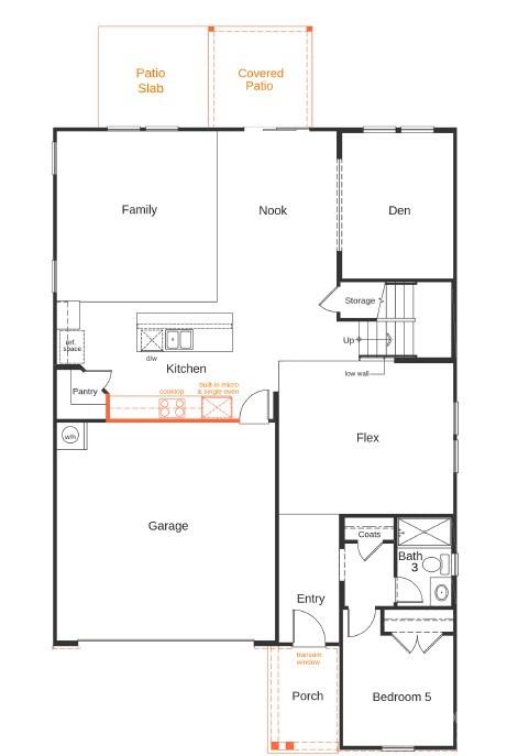
The 3147 is our largest available plan and built for family fun, with a 28x15 game room for all the indoor fun you can handle. 5 Bedrooms including one on the main with a full bath for out of town family or guests and 4 bedrooms upstairs. An extra den/office & a Flex room lets you keep all of your bedrooms for beds! Gourmet Kitchen, 9' ceilings, covered patio with an extra patio slab. Primary suite is a private escape, with our "Super Primary bath" that includes a soaking tub. Commuter & Fun Friendly Location! Close to Ballantyne (just 7 miles to "the Bowl"), Waverly & Ft. Mill. Beautiful community that will feature Pool, Cabana, Playground and walking trails! All of our homes are designed to be Energy Star Certified. This community has sold so fast, and Phase one is almost sold out with phase two not ready till early 27, Great price for the home and area.
| MLS#: | 4326765 |
| Price: | $659,861 |
| Square Footage: | 3147 |
| Bedrooms: | 5 |
| Bathrooms: | 3 |
| Acreage: | 0.2 |
| Year Built: | 2025 |
| Type: | Single Family Residence |
| Virtual Tour: | Click here |
| Listing courtesy of: | William Kiselick - 704-400-4536 |
Contact An Agent:



