Gastonia
North CarolinaWelcome to Gastonia
The city is a historic center for textile manufacturing and was the site of the Loray Mill Strike of 1929, which became a key event in the labor movement. While manufacturing remains important to the local economy, the city also has well-developed healthcare, education, and government sectors.
Listings
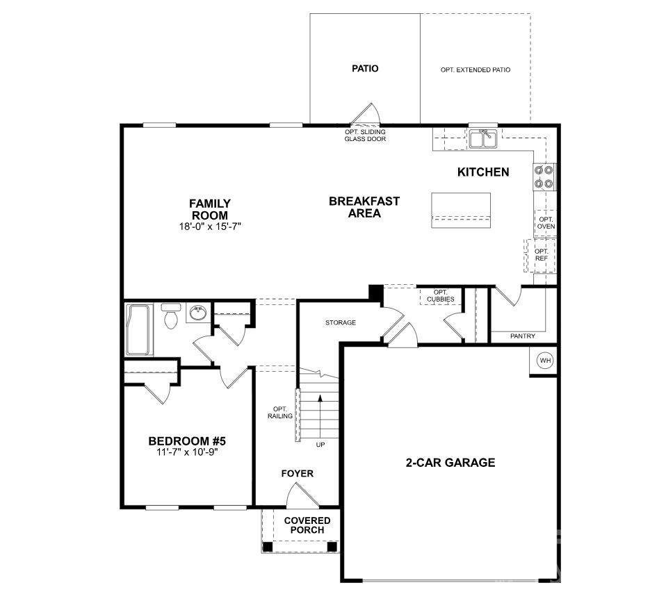
Welcome to the Erie! This beautiful home is set to impress with modern features & elegance. Entering the home from the front covered porch, you are greeted with an inviting and homey foyer. Off to the side, you'll find a main level guest bedroom with a shared full bathroom. The home will open up when entering your main living area. The kitchen is equipped with stainless steel appliances, French door refrigerator, kitchen island and granite counter tops. The breakfast area allows for sit down meals & extra space. Walk out the rear sliding glass door to your extended patio to enjoy entertaining or a morning coffee. The family room is spacious and open, allowing for a sectional as well as additional furniture. Throughout the main living areas is easily maintainable EVP flooring for easy cleaning as well as 2" faux wood blinds throughout the home. Upstairs you will find 2 additional bedrooms, a shared bathroom and the laundry room, complete with a washer and dryer. The spacious loft will provide an extra space to entertain or enjoy as a secondary living space. The Owner's suite is designed to maximize elegance and relaxation. The walk-in closet allows for maximum space for all your wardrobe needs. Finally, the en-suite is nothing short of spa-like. With a dual vanity, private toilet area & tiled shower. Boulder Ridge is located minutes from Crowder’s Mountain and has enhanced the surrounding landscape. The planned amenities have been designed to preserve the natural scenery as well as provide entertainment for every lifestyle. The natural walking trails highlight the natural beauty of the area and are also equipped with benches throughout for a quick rest or to enjoy nature. The community pool and cabana will be perfect for those hot summer days and features in pool sunbathing seating. The star of the amenities will be the disc golf course. This amenity is rarely seen throughout other communities and will provide a fun and unique experience for everyone. Welcome to your new home!
| MLS#: | 4347058 |
| Price: | $410,595 |
| Square Footage: | 2532 |
| Bedrooms: | 4 |
| Bathrooms: | 3 |
| Acreage: | 0.19 |
| Year Built: | 2026 |
| Type: | Single Family Residence |
| Listing courtesy of: | M/I Homes - jlallen@mihomes.com |
Contact An Agent:





