Gastonia
North CarolinaWelcome to Gastonia
The city is a historic center for textile manufacturing and was the site of the Loray Mill Strike of 1929, which became a key event in the labor movement. While manufacturing remains important to the local economy, the city also has well-developed healthcare, education, and government sectors.
Listings
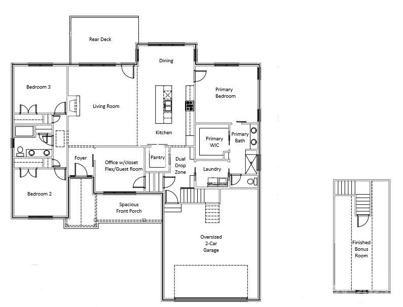
Offering Lender Credit toward rate buydown or closing costs with Builders Preferred Lender!! Stunning NEW Brick Home loaded with custom finishes and designed for modern living! This beautifully crafted 3-bedroom home also features a private office with closet—ideal as a 4th/guest bedroom—and a spacious finished bonus room over the garage for even more flexibility. Step inside to an inviting open layout where the living room’s brick fireplace with gas logs sets the perfect tone. The chef-inspired kitchen steals the show with a walk-in pantry, oversized island with seating and extra storage, and stylish finishes that make everyday living feel elevated. Retreat to the luxurious primary suite with plenty of windows bringing in natural light and en-suite featuring a double vanity, gorgeous tile shower, transom window, and a generous walk-in closet. The smartly designed double drop zone and convenient laundry access from both the primary bathroom and drop zone add incredible workflow and organization. Outdoor living shines with a charming front sitting porch, plus a large rear deck and dedicated grilling pad—perfect for gatherings and relaxing evenings. Ideally located just minutes from Crowders Mountain State Park, only 10-20 minutes from 5 Fabulous Golf Courses, quick access to Hwy 321 and I-85, within 30 minutes from Charlotte Douglas Airport, and South Carolina State line, this home delivers exceptional convenience with a peaceful feel. A must-see showpiece!
| MLS#: | 4321860 |
| Price: | $585,000 |
| Square Footage: | 2408 |
| Bedrooms: | 3 |
| Bathrooms: | 2 |
| Acreage: | 0.81 |
| Year Built: | 2025 |
| Type: | Single Family Residence |
| Listing courtesy of: | EXP Realty LLC - mistymorrisrealtor@gmail.com |
Contact An Agent:








































